Réhabilitation de la maison « Lili »

Entre authenticité et fonctionnalité, un projet qui redonne vie au cœur du village.

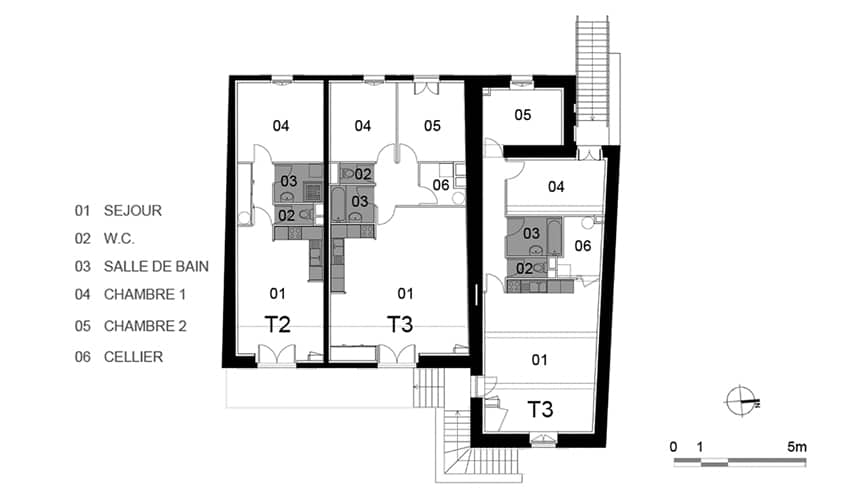
En plein cœur du village de Nivigne-et-Suran dans l’Ain, face à la mairie, la réhabilitation de la maison « Lili » a permis la création de trois logements à l’étage et d’un espace commercial au rez-de-chaussée.

  • Notre équipe d’architectes a imaginé une coursive, la plus fine possible, pour desservir les appartements et de surcroît protéger la vitrine du commerce. Les façades en pierres ont été conservées, un escalier a été créé avec des pierres récupérées sur le site et l’ancienne arche tout en pierres apparentes dessert l’accès au commerce

  • Les menuiseries et les volets en bois, en harmonie avec l’environnement proche, sont le reflet de ce projet particulièrement qualitatif et respectueux du bâtiment existant

    Pour un projet réussi, faites appel à Archibulle et imaginons ensemble vos futurs espaces.

    Photos réalisées par le photographe Philippe Hervouet

  • Ville

    Nivigne-sur-Suran

    Département

    Ain

    Maître d'ouvrage

    SEMCODA

    Surface

    598 m²

    Type de mission

    Mission complète

    Montant des travaux

    500 000€ HT

    Livraison

    2018