Maison en paille

Une maison passive au cœur d’un périmètre historique

Le terrain de cette maison passive située dans l’Ain se situe à 500 mètres d’un bâtiment classé aux monuments historiques. La construction d’une maison à très basse consommation d’énergie, donc d’une haute technicité, dans un périmètre classé historique est un double défi.

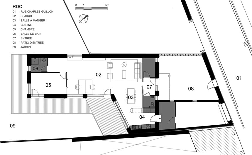
  • La géométrie de la parcelle est irrégulière avec des contraintes d’urbanisme fortes. La maison est conçue comme un parcours à travers le terrain. Une cour accueille l’habitant après avoir passé un premier mur existant. Un auvent et un hall d’entrée permettent l’accès au séjour avec un volume sous rampant. La forme originale de la maison ouvre sur un jardin en cœur d’îlot.

  • Les murs épais sont en ossature bois et isolés en bottes de paille. La toiture en pente de 10% est végétalisée.

  • Les avantages d'une maison passive dans l’Ain

    Construire une maison passive dans l’Ain offre de nombreux avantages. Ce type d’habitat est conçu pour maximiser l’efficacité énergétique en minimisant la consommation de chauffage. Grâce à une isolation renforcée, une orientation optimisée et une étanchéité à l’air parfaite, la maison passive assure un confort thermique exceptionnel tout au long de l’année, sans recours à des systèmes de chauffage classiques.

  • Dans le département de l’Ain, où les hivers peuvent être froids et les étés chauds, une maison passive permet de maintenir une température intérieure stable, sans coût énergétique élevé. Cela se traduit par des factures de chauffage largement réduites. En choisissant de faire construire une maison passive dans l’Ain, vous investissez dans une construction durable, respectueuse de l’environnement et à faible impact écologique.

    Les architectes de l’équipe d’Archibulle vous accompagnent dans la construction de votre maison passive dans l’Ain et vous offrent des solutions sur mesure qui allient esthétique, confort et performance énergétique.

  • Ce type de maison, en plus de sa performance énergétique exceptionnelle, valorise votre bien immobilier tout en réduisant votre empreinte carbone.
    Optez pour une maison passive et vivez dans un habitat moderne, sain et éco-responsable. Contactez nos architectes spécialisés dans la construction d’une maison passive dans l’Ain pour discuter de votre projet personnalisé.

    Photos réalisées par le photographe Philippe Hervouet.

  • Ville

    Bourg-en-Bresse

    Département

    Ain

    Maître d'ouvrage

    Privé

    Surface

    99 m²

    Type de mission

    Mission complète

    Livraison

    2014