Maison contemporaine dans l’Ain

Une architecture épurée, ouverte sur la terrasse et le paysage.

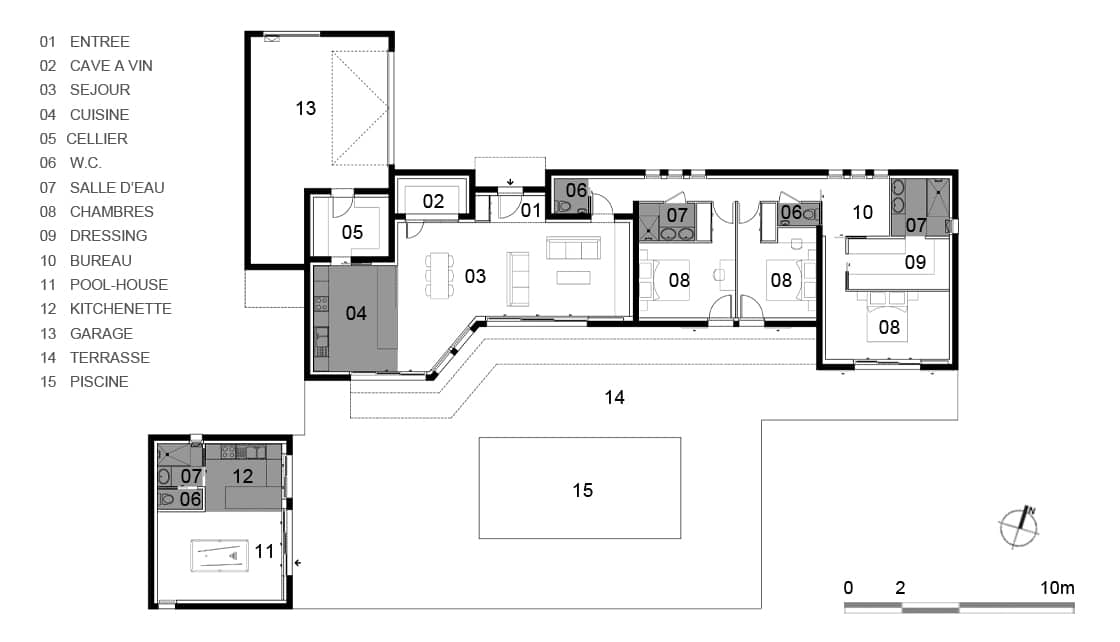
Dans cette maison contemporaine, située dans l’Ain, de plain-pied, les espaces sont distribués dans trois volumes afin d’optimiser la convivialité.

  • Le premier, d’architecture moderne, accueille les espaces de vie avec une très belle hauteur sous plafond, plus importante que celle du second, réservé à l'espace nuit et au garage. Le troisième volume indépendant abrite le pool house.

  • Tous les espaces sont largement ouverts sur la terrasse exposée plus au sud. Une pergola bioclimatique protège les grandes ouvertures d'un trop fort ensoleillement. Les toitures végétalisées, l'enduit blanc cassé et les menuiseries de couleur anthracite accentuent le caractère volontairement contemporain de cette habitation.

  • Optez pour une maison contemporaine et vivez dans un habitat sain et éco-responsable. Contactez nos architectes spécialisés dans la construction d’une maison dans l’Ain pour discuter de votre projet personnalisé.

     

  • Ville

    Saint-Rémy

    Département

    Ain

    Maître d'ouvrage

    Privé

    Surface

    186 m²

    Type de mission

    Mission Complète

    Livraison

    2019