Construction de 6 logements individuels groupés à Condeissiat

Des logements chaleureux, pensés en harmonie avec leur environnement.

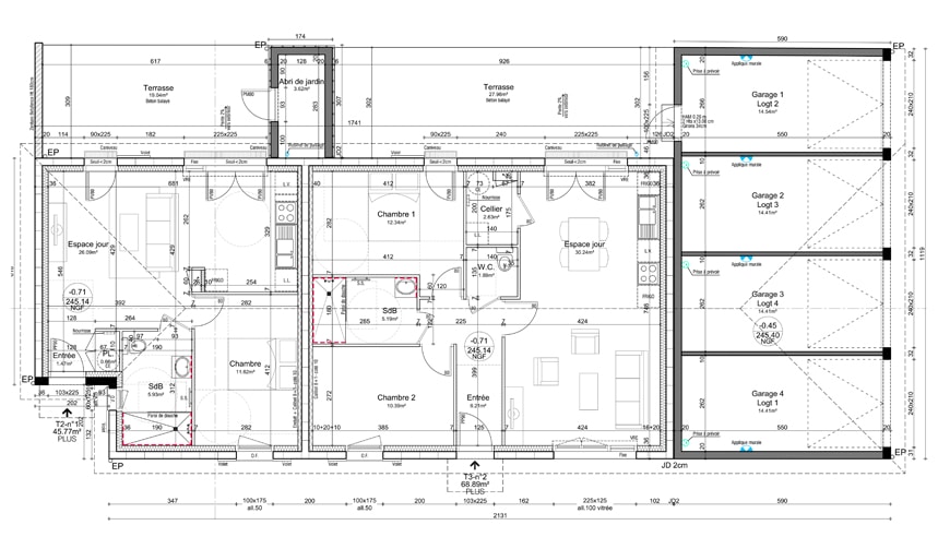
Ce projet, d’une superficie totale de 560 m², comprend deux bâtiments distincts. Le premier abrite un T2 et un T3, tandis que le second accueille quatre T3 en duplex.

  • Chaque logement bénéficie de garages indépendants et de jardins privés, agrémentés de terrasses et de cabanons, offrant confort et intimité aux habitants.

  • L’architecture traditionnelle, avec des tuiles en terre cuite rouge et des volets en bois, s’intègre harmonieusement dans le paysage de la commune, alliant esthétique et qualité de vie.

    Pour un projet réussi, faites appel à Archibulle et imaginons ensemble vos futurs espaces.

    Photos réalisées par la photographe Corinne Bertrand 

  • Ville

    Condeissiat

    Département

    Ain

    Maître d'ouvrage

    LOGIDIA

    Surface

    560 m²

    Type de mission

    Mission complète

    Montant des travaux

    700 000€ HT

    Livraison

    2024