Construction de 4 logements individuels groupés à Val-Revermont

Des duplex confortables intégrés au paysage du Revermont.

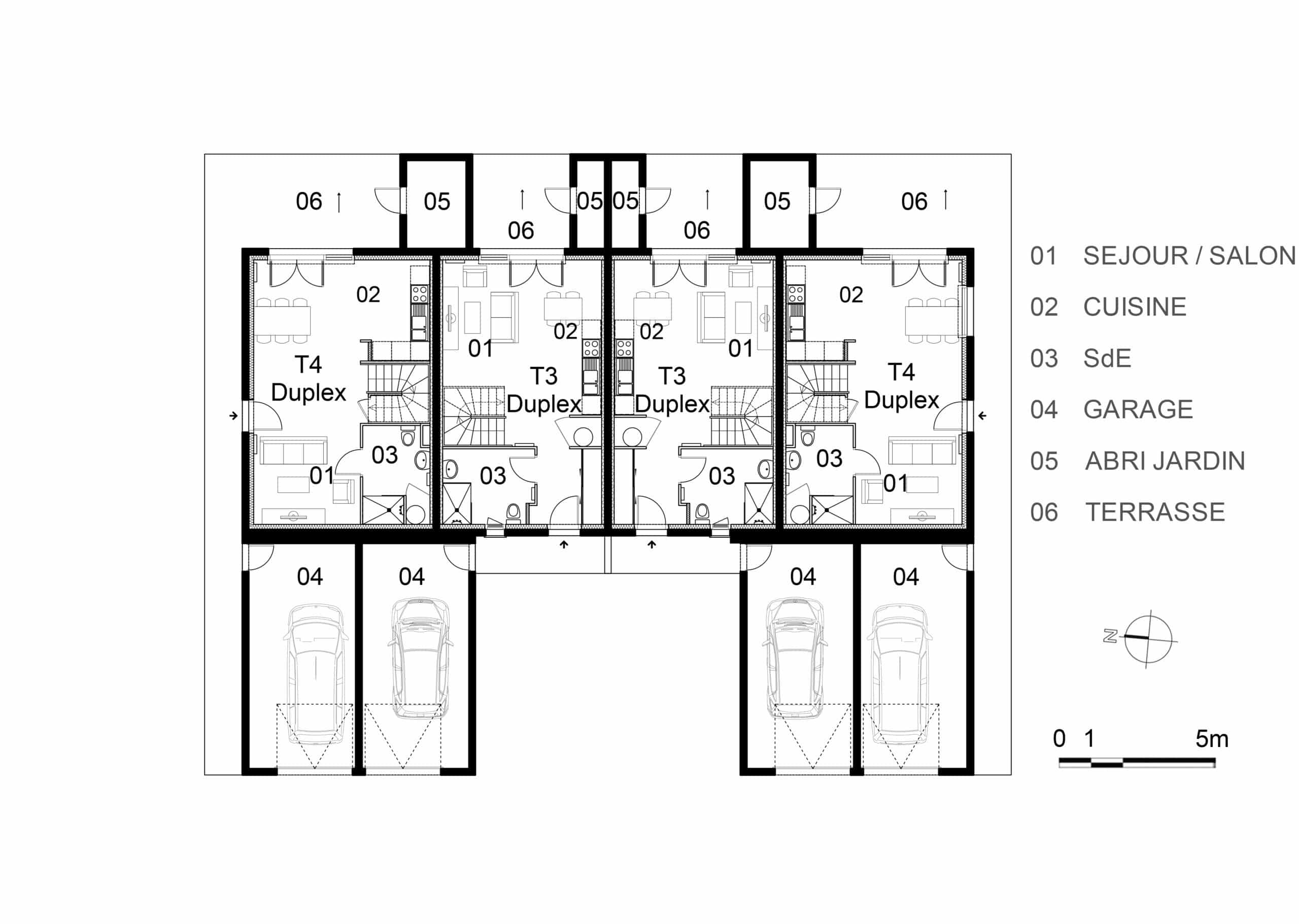
La commune de Cuisiat, située dans le Revermont, accueille la construction de quatre logements individuels. Le projet comprend deux duplex T3 et deux duplex T4, offrant une variété de volumes adaptée au site.

  • Chaque logement dispose d’un garage, d’une cour extérieure privative et d’un abri de jardin, garantissant confort et autonomie aux habitants.
    L’ensemble s’intègre harmonieusement dans l’environnement montagneux, alliant fonctionnalité et respect du paysage.

  • Pour un projet réussi, faites appel à Archibulle et imaginons ensemble vos futurs espaces.

    Photos réalisées par le photographe Corinne Bertrand

     

  • Ville

    Val-Revermont

    Département

    Ain

    Maître d'ouvrage

    LOGIDIA

    Surface

    369 m²

    Type de mission

    Mission complète

    Montant des travaux

    440 000€ HT

    Livraison

    2023